RESIDENCES


Interior Design for residence at Faridabad

Project Cost : INR 1.5 Million

Status : Completed June 2012


architectural design for residence at panvel

Project Cost : INR 7.5 Million

Status : Ongoing


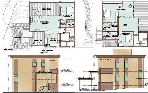
architectural design for residence at panvel, maharashtra

Project Cost : INR 6.5 Million

Status : Ongoing. Estimated completion March 2016


architectural design for residence at gk-2, new delhi

Project Cost : INR 3 Million

Status : Sanction


MASTER-PLANNING


master-plan for township at bangalore, karnataka

Project Cost : INR 45 Million

Sstaturs : Concept


concept master-plan for handicraft exposition mart, greater noida


master-plan for resettlement community at molarbandh

Project Cost : INR 10 Million

Status : Concept


INSTITUTIONAL


ARCHITECTURAL DESIGN FOR OFFICE BUILDING AT MUMBAI

Project Cost : INR 35 Million

Status : Concept


architectural design for eye hospital, bulandshehr

Project Cost : INR 6 Million

Status : Ongoing, expected October 2015


FURNITURE DESIGN


MULTI-UTILITY FURNITURE FOR STUDY/SLEEP SPACE